Skip to content
Our
Team
Our
Projects
Contact
Us
Our
Team
Our
Projects
Contact
Us
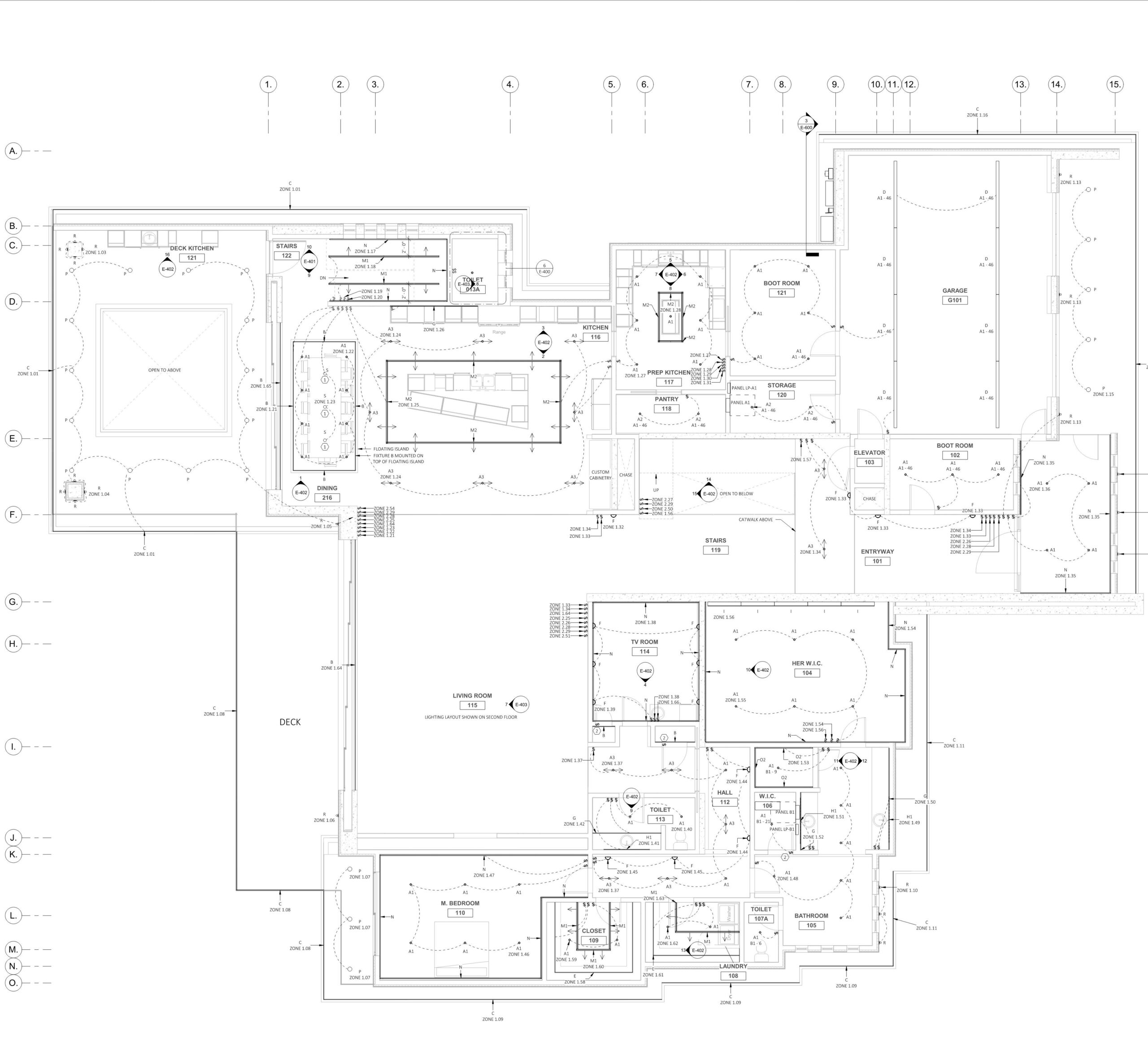
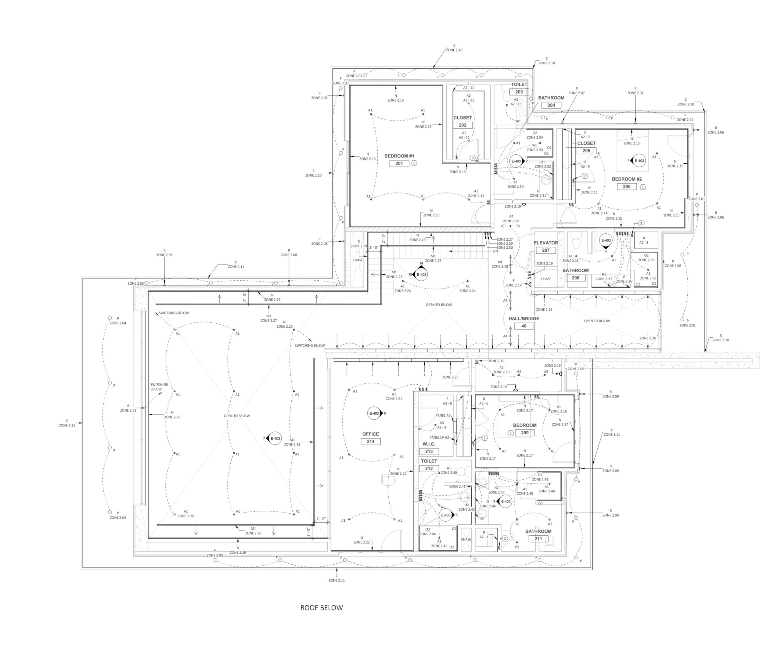
Campbell Lake 6,000sqft Residential Home
About the project
Client
Private owner
Date
October, 2020
Location
Campbell Lake, Anchorage, AK